Продается квартира Алматы, Алмалинский р-н, Райымбека, 162/3 (№ 2192192)
Цена: 52 млн. тг.

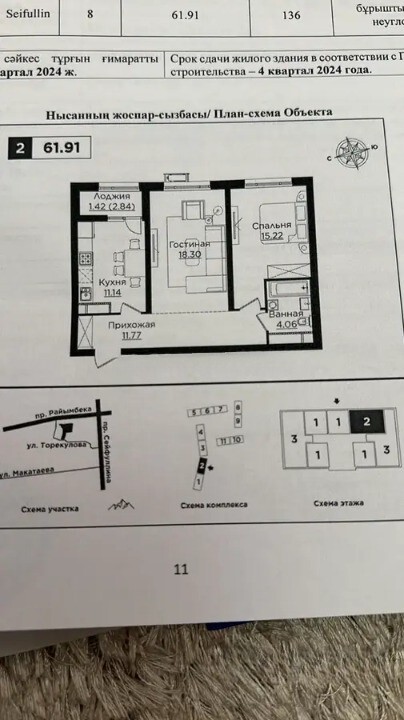
Характеристики
| Цена: | 52 млн. тг. |
|---|---|
| Комнат: | 1 |
| Этаж: | 8 / 12 |
| Площадь: | 63 / - / - м2 |
| Санузел: | 1 раздельный |
| Балкон: | лоджия |
| Год постройки: | 2024 |
| Материал стен: | Монолит |
| Высота потолков: | 3 |
| Мебель: | Пустая |
| Вид сотрудничества: | СР |
| Состояние: | Черновая |
| В залоге: | НЕТ |
| Перепланировка: | не было |
| Угловая: | НЕТ |
| Общежитие: | НЕТ |
| Жилой Комплекс: | Seifullin |
Адрес: Алматы, Алмалинский р-н, Райымбека, 162/3
Продается 2-комнатная квартира. Отличное расположение. ЖК комфорт + класса. Потолки 3 м. Ключи, документы на руках.

